Sokan meg vagytok ijedve, amikor méreteket kérünk a konyháról. Ne legyetek. Nem mm pontos építész tervrajz felvázolását kérjük tőletek.
Ennek a bejegyzésnek a lényege, hogy lássátok, hogyan kezdünk neki egy konyhatervezésnek. mik a főbb fázisok, amíg eljutunk a látványtervig.
Vágjunk is bele! 🙂
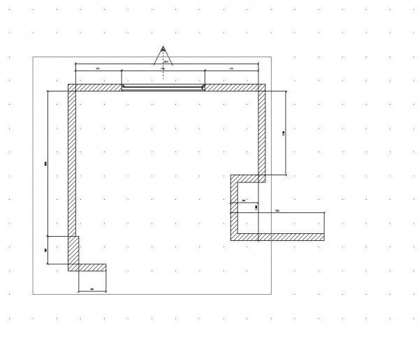
Ez az a rajz, amit hoznotok kell ahhoz, hogy el tudjunk indulni. (A cica nem kötelező elem.)
Ugye, hogy nem bonyolult?
A falon a két kis keresztbe vonás az ablakot jelöli, a kis beugrók a falban kémény helyét. Ezen kívül még azt kell tudnod, hogy hol jön be a víz és a gáz, ha erre szükséged lesz.
A legjobb, ha akkor jössz ezzel a kis rajzzal, ha még villanyszerelés előtt állsz, mert amikor a szakember majd megkérdezi tőled, hogy mivel hová álljon ki, akkor már a konkrét terveknek megfelelően kell ezt megtennie.

A megrendelő vázlata a konyháról
Amikor ott ülsz majd a Stúdiónkban, és beszélgetünk, akkor közben firkálunk majd egy papírra, aminek valami ilyesmi lesz az eredménye. Mivel a mögöttünk álló rengeteg tapasztalat, több ezer elkészített konyha rajza a kezünkben van, ezért az átlagos alapterületű és kiosztású konyhában többnyire már a véglegeshez közeli állapotot sikerül felrajzolnunk.
Persze vannak olyan konyhák és olyan ügyfelek, akikkel a negyedik-ötödik, vagy a tizedik verzió lesz a végleges, de ez nem hátrány, sőt sokszor előnyös, ha megengedik nekünk, hogy felrajzoljuk az általunk elképzelt verziókat is.
Ebből már el tud készülni egy alaprajz. Amint látod, a rajzon feltüntetésre került, hogy egy fehér, letisztult, rusztikus stílusú konyhát szeretne az ügyfél.
Így néz ki a csupasz alaprajz:
Most jöhetnek azok az információk, amikre oda kell figyelni a tervezés során. Pl. a gázkazán, amit el kell helyezni a konyhában, kell-e mosogató gép, beépíthetőek lesznek-e a készülékek, fiókokat vagy inkább ajtós elemeket szeretne, mekkora mosogatóra van szüksége, stb.
Így fog kinézni a terv, miután betettük az elemeket, amik a vázlaton szerepeltek:
Látszik, hogy a hűtő nem fér be a megmaradt helyre. Ez lehet, hogy a helyszíni felméréskor mért méretek alapján majd változni fog, de most át kell tennünk máshová. Egy olyan konyhát kell kialakítani, ami a megadott méretek szerint megvalósítható lenne.
Ilyen lesz a második változat:
Ezt a tervet már meg tudjuk mutatni a megrendelőnek, aki a saját maga által elképzelt konyhához képest el tudja mondani, hogy mit hová szeretne, mi az, ami tetszik neki és mi az, ami nem.
Természetesen nem az első változat kerül megvalósításra – bár már ilyenre is volt példa. Nagy általánosságban a 3. vagy 4. verzió lesz a végleges, de még sokszor az utolsó pillanatban is módosítunk néhány elem méretén, az ajtónyílás irányán, stb.
Ez a terv így nézett ki, amikor a megrendelő legelőször látta:
Mivel még nem tudta eldönteni, hogy milyen legyen a páraelszívó, így készült egy második verzió is, egy teleszkópos elszívóval:
Ezek után kezdődik a terv finomítása, színek kiválasztása, marásminták, munkalap, világítás, stb.
A további beszélgetések eredményeként egy ilyen terv alakult ki:
Ha Neked is szükséged van egy ilyen tervre, akkor ingyenesen elkészítjük a Kitti Konyhabútor Stúdióban.
Ha szeretnéd elvinni a tervet, hogy máshol is ajánlatot kérj rá, akkor a tervezés 15.000,- Ft-ba kerül. Ezért az árért megkapod a látványterveket és a méretezett falnézeteket is.








 
		     
		     
		     
		     
		
        
        
        
				
Kommentek
Kommenteléshez kérlek, jelentkezz be: